2551 KZ 's-Gravenhage

Charlie Parkerstraat 35

€ 445.000,- k.k.

Omschrijving

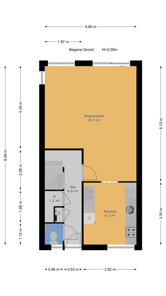
Op een zeer aangename en rustige locatie gesitueerde hoek eengezinswoning met 3 goede slaapkamers (de 2e etage is thans nog ongebruikt maar kan worden omgebouwd tot 4e slaapkamer) en aan drie zijden van het huis tuin. De woning is gelegen in de wijk Nieuw Waldeck nabij divers winkelaanbod, scholen (waaronder de International School ISH), sportvoorzieningen (waaronder voetbal, golf, tennis en hockey), vele openbaar vervoerverbindingen, op circa 10 minuten fietsafstand van het strand en de boulevard van het nieuwe Kijkduin en het groen van Meer en Bos is op loopafstand! Indeling van de woning: Entree via de ruime voortuin, entree van de woning, gang, toilet met een fonteintje, vaste kast, meterkast, woon-/ eetkamer met deur naar een ruime achtertuin met achterom keuken aan de voorzijde met een eenvoudige inrichting voorzien van diverse apparatuur waaronder een inductie kookplaat (functioneert niet goed), een afzuigkap, een combimagnetron en een vaatwasser (werkt niet), trap naar de... Lees meer

Interesse in dit object?

Kenmerken
Omschrijving
Media
Brochure

Kenmerken

Overdracht

Status
Verkocht onder voorbehoud
Koopprijs
€ 445.000,- k.k.
Aanvaarding
In overleg

Adres

Straatnaam
Charlie Parkerstraat
Huisnummer
35
Postcode
2551 KZ
Plaats
's-Gravenhage
Land
Nederland
Provincie
ZUID_HOLLAND

Bouwvorm

Bouwvorm
Bestaande bouw
Objecttype
Woonhuis
Huidig gebruik
Woonruimte
Huidige bestemming
Woonruimte
Permanente bewoning
Ja
Recreatiewoning
Nee
Liggingen
In woonwijk
Bouwjaar
1981
In aanbouw
Nee
Isolatievormen
Dubbelglas, HR glas
Dak type
Zadeldak
Dak materialen
Pannen

Oppervlakte en inhoud

Woonoppervlakte
93 m2
Totale kadestrale oppervlakte
195 m2
Oppervlakte externe bergruimte
5 m2
Buitenruimtes gebouwgebonden of vrijstaand
0 m2
Perceel oppervlakte
195 m2

Indeling

Aantal kamers
5
Aantal slaapkamers
3
Aantal badkamers
1
Voorzieningen
Natuurlijke ventilatie

Energie en isolatie

Isolatievormen
Dubbelglas, HR glas
Energieklasse
C
Energielabel einddatum
8 July 2035
Soorten verwarming
CV ketel
CV ketel type
Nefit
CV ketel bouwjaar
2015
CV ketel brandstof
Gas
CV ketel eigendom
Eigendom
CV ketel combiketel
Ja
Soorten warm water
CV ketel

Dak

Dak type
Zadeldak
Dak materialen
Pannen
Voorzieningen
Natuurlijke ventilatie

Tuin

Tuintypen
Achtertuin, Voortuin, Zijtuin
Kwaliteit
Normaal
Totale oppervlakte
148 m2
Type
Achtertuin
Positie
Noordoost
Achterom
Ja
Lengte
950 m
Breedte
710 m
Oppervlakte
67 m2

Parkeergelegenheid

Soorten
Geen garage
Parkeer faciliteiten
Openbaar parkeren

Bergruimte

Soort
Vrijstaand steen
Voorzieningen
Voorzien van elektra
Totaal aantal
1

Huiseigenschappen

Soort
Eengezinswoning
Type
Hoekwoning

Kadastrale gegevens

Afkoopoptie
Nee
Eeuwig afgekocht
Nee
Eigendomssoort
Erfpacht
Erfpacht per jaar
1,13
Erfpachtduur
Voortdured
Erfpachtgever
Gemeente
Erfpachtprijsvorm
Vast
Invoerdatum
14 October 2025
Omvang
Geheel perceel
Oppervlakte
195 m2
Perceel
6361
Sectie
H
Wijzigingsdatum
14 October 2025, 09:31
Gemeente
Loosduinen

Omschrijving

Op een zeer aangename en rustige locatie gesitueerde hoek eengezinswoning met 3 goede slaapkamers (de 2e etage is thans nog ongebruikt maar kan worden omgebouwd tot 4e slaapkamer) en aan drie zijden van het huis tuin. De woning is gelegen in de wijk Nieuw Waldeck nabij divers winkelaanbod, scholen (waaronder de International School ISH), sportvoorzieningen (waaronder voetbal, golf, tennis en hockey), vele openbaar vervoerverbindingen, op circa 10 minuten fietsafstand van het strand en de boulevard van het nieuwe Kijkduin en het groen van Meer en Bos is op loopafstand!

Indeling van de woning:

Entree via de ruime voortuin, entree van de woning, gang, toilet met een fonteintje, vaste kast, meterkast, woon-/ eetkamer met deur naar een ruime achtertuin met achterom keuken aan de voorzijde met een eenvoudige inrichting voorzien van diverse apparatuur waaronder een inductie kookplaat (functioneert niet goed), een afzuigkap, een combimagnetron en een vaatwasser (werkt niet), trap naar de 1e etage, overloop, 2 slaapkamers aan de achterzijde, ruime doorgebroken slaapkamer aan de voorzijde, badkamer met een ligbad, een douche, een toilet, aansluiting voor de wasmachine en een vaste wastafel, vlizotrap naar de 2e etage, grote kapetage met dakraam, opstelplaats van de cv-combiketel.

Bijzonderheden:

* erfpacht uitgegeven voor onbepaalde tijd, canon afgekocht tot 31 juli 2030
* de grondwaarde voor eeuwigdurende afkoop van de erfpachtcanon is thans circa € 6.900,=
* gebruiksoppervlakte circa 93 m² en 15 m2 overig inpandige ruimte (2e etage)
* plattegronden beschikbaar ingemeten op basis van de BBMI
* centrale verwarming middels een cv-combiketel (Nefit, bouwjaar circa 2015)
* er is een energielabel C afgegeven voor deze woning
* kunststof kozijnen met dubbel glas (HR)
* iso chips aanwezig in de kruipruimte als bodemisolatie
* het onderhoud van de woning is intern redelijk en extern redelijk tot goed
* er is een bouwkundig keuringsrapport beschikbaar
* bouwjaar 1981
* eigen berging aan het achterpad
* verkoop onder voorbehoud toestemming kantonrechter
* op deze verkoop zijn voorwaarden van toepassing welke op voorhand ter inzage zijn.

Interesse in deze sfeervolle en ruime eengezinswoning….? Schakel direct uw eigen NVM-aankoopmakelaar in.
Uw NVM-aankoopmakelaar komt op voor uw belang en bespaart u tijd, geld en zorgen.

Adressen van collega NVM-aankoopmakelaars in Haaglanden vindt u op Funda.

Foto's

0+

Jaar Ervaring

0+

Huizen Verkocht

0.5+

Gemiddelde Beoordeling

0%

Klanttevredenheid

Gerelateerde Woningen

Beeklaan 158

‘S-GRAVENHAGE

Op de hoek van de Vinkensteynstraat en de Beeklaan gelegen dubbel bovenhuis van circa 165 m2. Extern onderhoud is op peil, intern dient de woning…

€ 425000 k.k.

  • 165m²
  • 6
Jacques Urlusstraat 28

‘S-GRAVENHAGE

Deze garagebox maakt deel uit van het appartementencomplex Catharina van Rennesstraat 3 tot en met 149 te Den Haag en is voorzien van een houten…

€ 52500 k.k.

Oude Boomgaardstraat 2

‘S-GRAVENHAGE

Gelegen in de levendige wijk Kortenbos, op steenworp afstand van het Haagse stadscentrum, bevindt zich dit karakteristieke hoekappartement aan de Oude Boomgaardstraat 2. Deze woning…

€ 275000 k.k.

  • 66m²
  • 1
Deltapromenade 452

‘S-GRAVENHAGE

In een zeer fraai en luxe complex op het Nieuwe Kijkduin gelegen ruim penthouse appartement (circa 131 m²) met een groot zonneterras van 105 m²…

€ 1375000 k.k.

  • 131m²
  • 2
Burgemeester Waldeckstraat 8

‘S-GRAVENHAGE

Op de eerste (top)etage gelegen 4-kamer appartement met 3 slaapkamers en een balkon op het zuiden. De woning is recent intern gerenoveerd en is derhalve…

€ 275000 k.k.

  • 63m²
  • 3
Loosduinse Hoofdplein 243

‘S-GRAVENHAGE

In het centrum van Loosduinen gesitueerd 3-kamer appartement gelegen op de 3e etage met een grote woonkeuken, een balkon/loggia en een eigen berging op het…

€ 300000 k.k.

  • 87m²
  • 2
Nassauplein 14

MONSTER

Bent u op zoek naar een eengezinswoning met volop mogelijkheden om er helemaal uw eigen thuis van te maken? Dan is deze woning precies wat…

€ 375000 k.k.

  • 104m²
  • 150 m²
  • 4
Louis Davidsstraat 151

‘S-GRAVENHAGE

Zeer ruim en licht 5-kamer hoekappartement op de 5e verdieping met een woonoppervlakte van circa 111 m² en een eigen berging op de begane grond.…

€ 345000 k.k.

  • 111m²
  • 37 m²
  • 3
Mozartlaan 504

‘S-GRAVENHAGE

In het appartementencomplex “Waldeckstaete” gelegen 2-kamer appartement op de 11e etage met schitterend uitzicht helemaal tot aan Rotterdam aan de achterkant en aan de voorzijde…

€ 225000 k.k.

  • 52m²
  • 1
Dr. R.J. Fruinstraat 34

‘S-GRAVENHAGE

Deze leuke eindwoning is zeer centraal in de wijk “Houtwijk” gelegen waarbij vele voorzieningen op relatief korte afstand te bereiken zijn. Zo zijn er diverse…

€ 485000 k.k.

  • 111m²
  • 130 m²
  • 3